Ingenieurbüro Dipl.-Ing. Olaf Deters

Tragwerksplanung im Bauwesen

An der Koppel 10e | 21220 Seevetal
Tel.: 04105-660834 | info@statik-deters.de
Statische Berechnungen für das Bauwesen
seit 1999

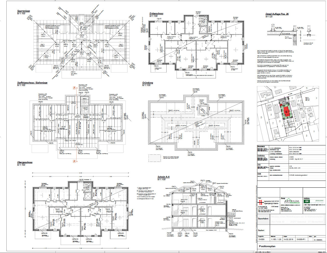
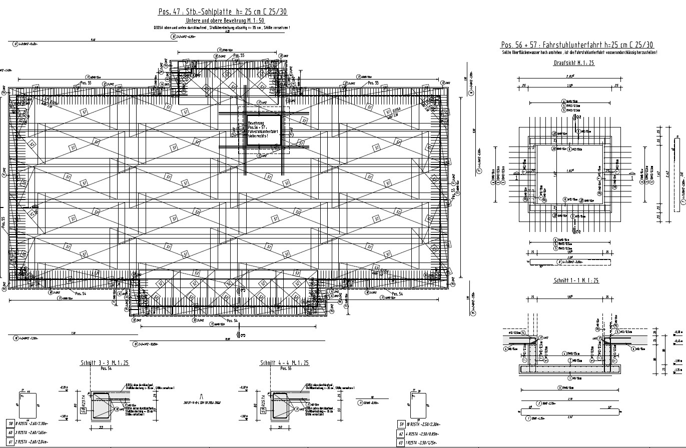
Der Ansatz


Maxime ist es, die statischen Nachweise modern und zeitgemäß zu erstellen, jedoch ohne theoretischen Ballast und wissenschaftliche Allüren. Das altbewährte Konzept der Positionsstatik wird deshalb bewusst beibehalten und wenn sinnvoll, durch die Möglichkeiten der 3D-Berechungen und 3D-Visualisierung ergänzt. Die dafür zur Verfügung stehenden Programme sind durchweg hochwertig, aufgabenorientiert und stets auf dem neusten Stand. Auch wird auf regelmäßige Weiterbildung geachtet und die hauseigene Fachbibliothek gepflegt.


Auf Lesbarkeit und Transparenz wird viel Wert gelegt, genauso wie auf eine durchgängige Darstellungform. Die Ausgabe und Bereitstellung der Statik als PDF-Dokument sind selbstverständlich. All das ist unabhängig von der Art und Größe des Projektes.


Impressionen